





LOGEMENTS 3H
Construction d’une habitation à trois logements
Maître d’ouvrage privé
Kumanovë, Kumanovë, Macédoine du nord
Projet de l’ouvrage
Estimation sommaire des coûts
2016
La ville de Kumanovë est constituée en majorité par des habitations individuelles. Au sein de ses maisons, au première abord uni-familiale, se cache un tissu urbain plus complexe. Un dédale de passages et de connexions relient les aménagements extérieurs de chaque habitat. Un rapport sourd avec la rue fait place à une atmosphère collective une fois le seuil du portique franchi.
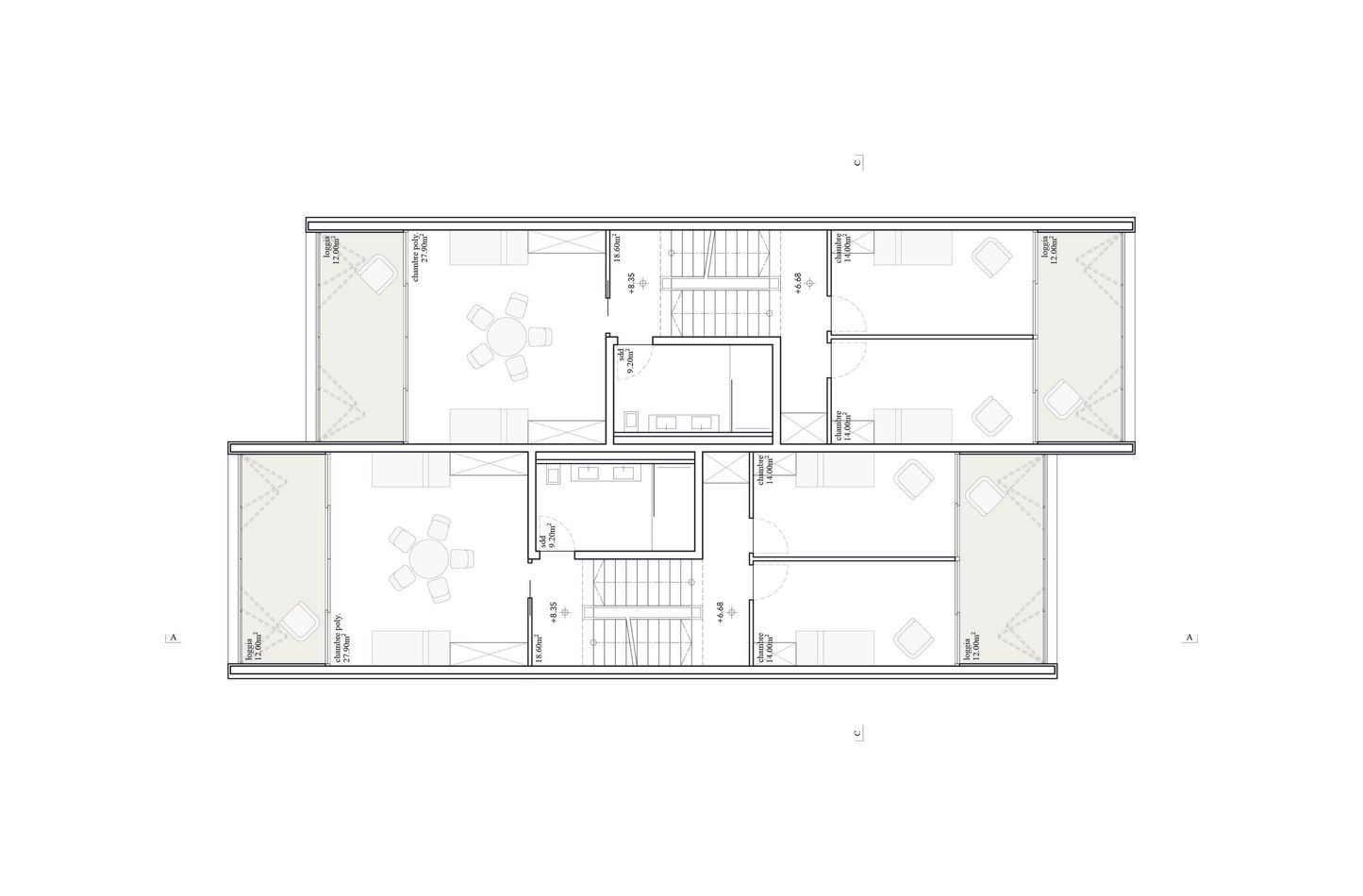
Axe structurant le projet, une ruelle en demi-niveau regroupant les espaces collectifs distribuent les trois logements. Un rapport distant avec la rue, fait place à un aménagement extérieur constitué de cour et de terrasse surmonté de pergola végétalisé.
Parallèle à cet espace collectif, le bâti est constitué de deux volumes glissés générant un retrait part rapport aux limites parcellaires. Adoptant les mêmes caractéristiques que la ruelle, la typologie intérieure en demi-niveau permet une grande générosité spatiale accentuée par des loggias de part et d’autre des façades pignons.

















LOGEMENTS 3H
Construction d’une habitation à trois logements
Maître d’ouvrage privé
Kumanovë, Kumanovë, Macédoine du nord
Projet de l’ouvrage
Estimation sommaire des coûts
2016
La ville de Kumanovë est constituée en majorité par des habitations individuelles. Au sein de ses maisons, au première abord uni-familiale, se cache un tissu urbain plus complexe. Un dédale de passages et de connexions relient les aménagements extérieurs de chaque habitat. Un rapport sourd avec la rue fait place à une atmosphère collective une fois le seuil du portique franchi.
Axe structurant le projet, une ruelle en demi-niveau regroupant les espaces collectifs distribuent les trois logements. Un rapport distant avec la rue, fait place à un aménagement extérieur constitué de cour et de terrasse surmonté de pergola végétalisé.
Parallèle à cet espace collectif, le bâti est constitué de deux volumes glissés générant un retrait part rapport aux limites parcellaires. Adoptant les mêmes caractéristiques que la ruelle, la typologie intérieure en demi-niveau permet une grande générosité spatiale accentuée par des loggias de part et d’autre des façades pignons.










